湖南柏竣建築草莓视频黄污在线观看

層    數 結構形式 建築風格
開    間
14.98m
占地麵積
198.80㎡
建築麵積
346.00㎡
進    深
20.04m
主體造價
25萬~30萬(僅供參考)
製作軟件
AutoCAD
圖紙內容
建築圖
建築設計說明,構造表,一層平麵圖,二層平麵圖,悶頂層平麵,屋頂層平麵圖,立麵圖,剖麵圖,樓梯平麵詳圖,節點詳圖,牆身大樣圖,門窗大樣圖,門窗表
結構圖
結構設計說明,基礎大樣圖,基礎施工圖,基礎頂~屋頂柱施工圖,一層結構施工圖,屋頂層施工圖,二層結構施工圖,屋頂層施工圖,大樣圖。
給排水圖
給排水設計說明,一層給排水平麵圖,二層給排水平麵圖,屋頂層排水平麵圖,給排水係統原理圖,衛生間給排水詳圖,化糞池大樣圖,汙水檢查井大樣圖
電氣圖
電氣設計說明,電氣設計說明,主要設備及材料表,配電箱係統圖,弱電係統圖,一層照明平麵圖,二層照明平麵圖,一層插座平麵圖,二層插座平麵圖,一層弱電平麵圖,二層弱電平麵圖,屋麵防雷平麵圖
設計功能
一層
一室、堂層、儲藏室、衛生間、廚房、車庫、院子、餐廳
二層
三室、客廳、二露台、書房、衛生間、儲藏室、娛樂室
圖紙展示
  • 建築效果圖

    正麵效果圖

    正麵效果圖

    正立麵效果圖

    正立麵效果圖

    北立麵效果圖

    北立麵效果圖

    東立麵效果圖

    東立麵效果圖

    西立麵效果圖

    西立麵效果圖
    平麵方案圖

    一層:一室、堂層、儲藏室、衛生間、廚房、車庫、院子、餐廳

    一層:一室、堂層、儲藏室、衛生間、廚房、車庫、院子、餐廳

    二層:三室、客廳、二露台、書房、衛生間、儲藏室、娛樂室

    二層:三室、客廳、二露台、書房、衛生間、儲藏室、娛樂室
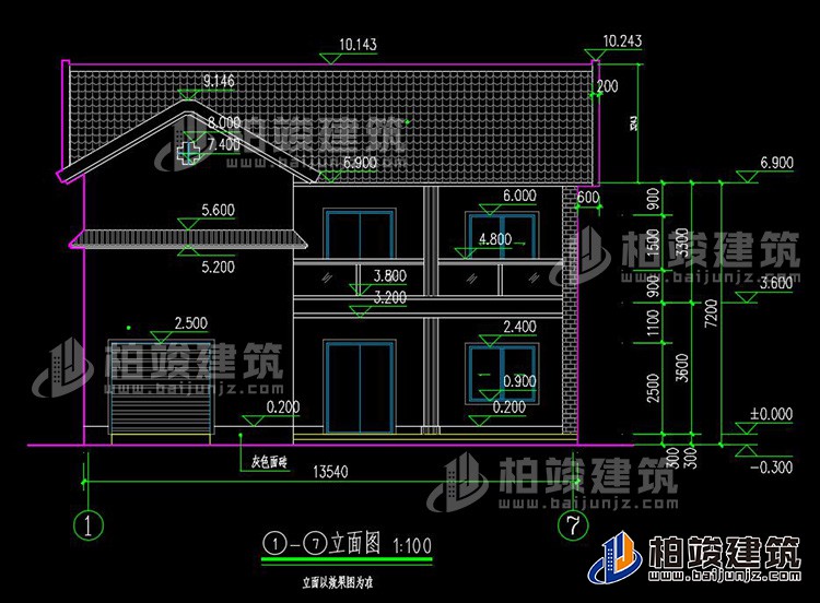
    建築立麵圖

    正立麵圖

    正立麵圖

    背立麵圖

    背立麵圖
累計評論 0

沒有任何評論


新農村2019中式風格二層樓房設計圖
圖紙編號:BZ214
圖紙價格:¥598元
支付方式:支付寶付款銀行轉賬
承諾支持:全國免費包郵貨到付款

請您在下訂單前與在線客服確認配送範圍。

您在本站訂購的圖紙,草莓视频黄污在线观看客服人員會電話與您聯係確認圖紙編號、收貨信息等, 感謝您對本站的關注,祝您網上購物愉快!

購圖前重要說明:

購買本套圖紙僅提供打印好的圖紙一份,草莓视频黄污在线观看不出售電子文件、光盤。草莓视频黄污在线观看設計的圖紙非常詳細,用A3規格打印圖紙,比傳統藍圖更清晰、容易複印、方便收藏,可以直接應用到施工現場。售後服務僅為圖紙答疑,不包任何修改,因為隻要其中一張圖紙改變,其它圖紙相應均需修改,工作量較大,所以草莓视频黄污在线观看不包修改。如果您個性要求較多需按要求訂做設計,請查看別墅設計業務流程,並聯係設計客服谘詢設計收費標準。


快速導航
網站地圖